Réhabilitation & extension du collège G. Courteline

Paris 12

Réhabilitation & extension du collège G. Courteline
Réhabilitation & extension du collège G. Courteline
Réhabilitation & extension du collège G. Courteline
Réhabilitation & extension du collège G. Courteline
Réhabilitation & extension du collège G. Courteline
Réhabilitation & extension du collège G. Courteline
Réhabilitation & extension du collège G. Courteline
Réhabilitation & extension du collège G. Courteline
Réhabilitation & extension du collège G. Courteline
Réhabilitation & extension du collège G. Courteline
Réhabilitation & extension du collège G. Courteline
Réhabilitation & extension du collège G. Courteline
Réhabilitation & extension du collège G. Courteline

Opérant dans un site contraint au patrimoine hétéroclite, nous déployons des dispositifs où l’économie de moyens n’interdit pas la richesse du langage, ceci afin d’assurer une nouvelle cohérence architecturale.

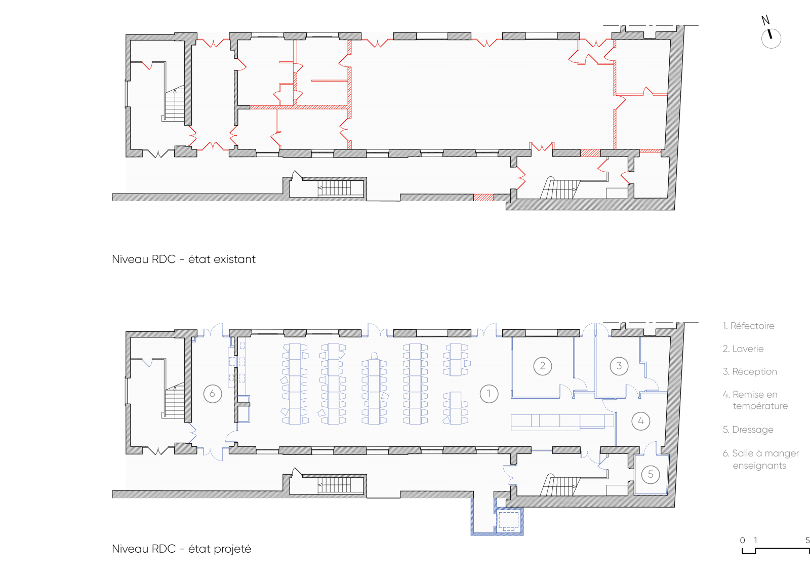
Notre objectif en intervenant sur ce site riche d’histoire et marqué par différentes époques est de veiller à maintenir la cohérence architecturale et fonctionnelle du Collège. Ainsi, nous proposons une Architecture claire et lisible, excluant tout effet monumental ou sans rapport avec le contexte dans lequel elle s’inscrit, ceci afin de réaliser une restructuration et des extensions de qualité.

Le CDI, simple rez-de-chaussée, s’inscrit aux pieds de bâtiments existants en R+3 : il sera donc le plus bas et sa toiture sera fortement visible. Nous avons donc souhaité que celle-ci soit une véritable cinquième façade et participe au confort visuel sur le site. Ainsi, nous avons conçu un bâtiment enveloppé d’un seul et unique matériau, mis en œuvre de la même manière : tantôt en façade, tantôt en toiture.

Les bâtiments nouveaux s’inscrivent dans un contexte dominé par la brique. Nous ne souhaitions pas développer un langage de brique que nous ne trouvions pas adapté à l’échelle des bâtiments à construire. Nous avons fait le choix d’une cohérence chromatique assurant l’unité du site, tout en jouant du contraste entre la massivité et la minéralité de la brique qui dialogue avec la légèreté et les jeux de lumière qu’offre le zinc.

Les volumes construits développent le thème du zinc, en proposant plusieurs mises en œuvre. Nous préférons en effet au catalogue de différents matériaux, que nous jugeons trop bavard sur une opération de cette échelle, travailler un seul et unique matériau en jouant de son emploi, de ses fonctions, de ses finitions. Ainsi, le zinc est ici façade, toiture, brise-soleil, pare-vue.

Concours 2017
Livraison 2019
Client Ville de Paris
Surface réhabilitation 970 m² / extension 220 m²
Écologie Plan Climat Ville de Paris et RT2012
Coût 2,54 M€ 

Photos Guillaume Guerin & Nicolas Chausson

↓ Télécharger le dossier de presse

fiche pdf

Voir aussi :