Réhabilitation de la halle de musculation des Blagis

Sceaux

Réhabilitation de la halle de musculation des Blagis
Réhabilitation de la halle de musculation des Blagis
Réhabilitation de la halle de musculation des Blagis
Réhabilitation de la halle de musculation des Blagis

Notre intervention sur cette halle à l’Architecture a consisté à mettre en valeur le déjà là, à le révéler sous un nouveau jour. Notre objectif étant que le bâtiment existant exploite au mieux son potentiel d’usage.

En termes de matérialité, le socle, opaque, sera revêtu d’un bardage aluminium nervuré. Les nervures au rythme irrégulier du bardage offriront un aspect changeant au bâtiment tant sa perception variera en fonction d’où on l’observe et des conditions météorologiques. Les ombres portées des nervures, et les reflets évolueront sans cesse nourrissant la richesse esthétique du projet quand bien même sa grande simplicité. Le socle sera surmonté d’une paroi réalisée avec une double peau en polycarbonate. Cela permettra de diffuser une lumière naturelle douce, diffuse et homogène dans la halle. De l’extérieur, de nuit la halle s’illuminera affirmant sa présence dans la ville et son statut d’équipement public. Outre leurs qualités de performance thermique et leur coût raisonnable, les matériaux offrirons une nouvelle image remarquable à la Halle.
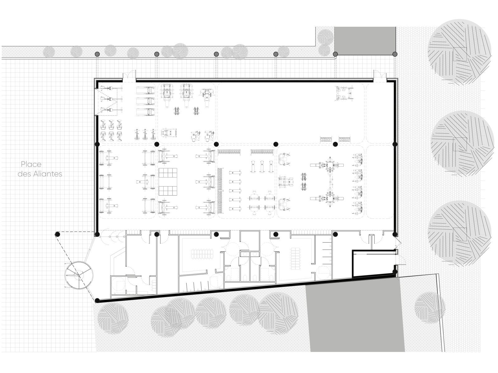
Notre proposition reprend les préconisations du programme : une bande servante regroupant vestiaires, sanitaires, local entretien, locaux technique, etc… et un plateau de musculation au plan libre. Chacun s’insérant parfaitement dans les 2 modes constructifs et volumétries des existants : béton/ toiture terrasse pour la bande servante, charpente métallique/ bacs acier pour le plateau de musculation.
La réhabilitation de la Halle ne se limitera pas uniquement au redéploiement du matériel et des habitus préexistants dans de meilleures conditions de pratique : notre intervention sera l’opportunité d’une réflexion plus globale sur le lieu afin d’offrir un nouveau champ de possibles.

Concours 2021
Client Ville de Sceaux
Surface 822 m²
Écologie RT par élément
Coût 1,15 M€

fiche pdf

Voir aussi :